› Vimmerby › SE05017
SE05017
Vimmerby - House
Availability and prices
Accommodation
Description
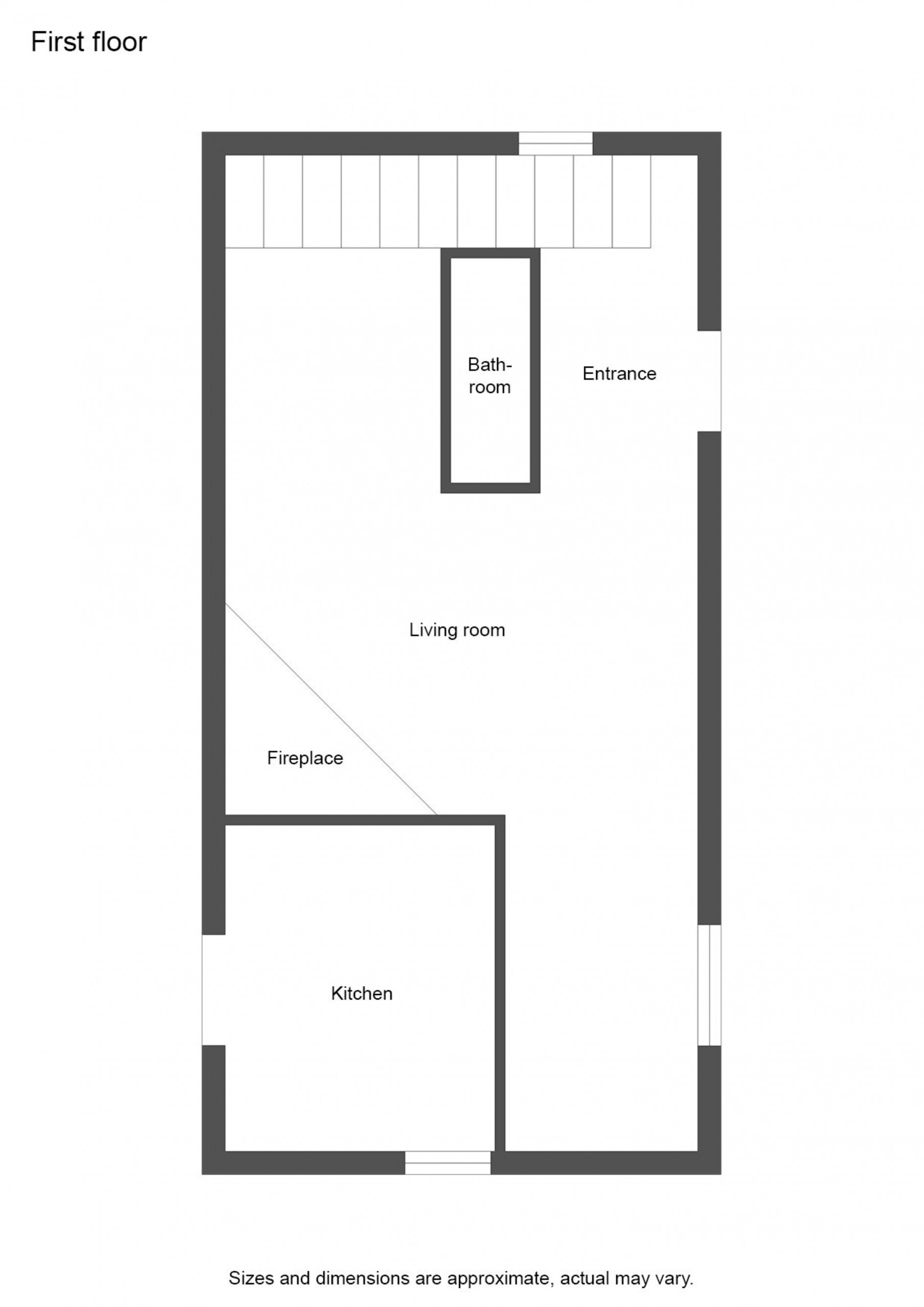
Welcome to this rural cottage with a large garden and a lake with jetty within walking distance. The cottage has two floors and two bedrooms with beds for seven people, plus shower and toilet. The kitchen is small but charming but the garden is large and there is also a terrace with outdoor furniture to be able to eat the family dinner outdoors on summer evenings. Barbecue is also available if you want a barbecue evening.
Things to see and do in Vimmerby and the surrounding area
20 minutes away you have the nearest town, Vimmerby, known for having been one of Sweden's most famous authors, Astrid Lindgren's hometown. There is a lot to do here in connection with Astrid Lindgren and all the stories she wrote that have become so beloved in Sweden and the world. Of course, there is a theme park called Astrid Lindgren's world which has recreated many of the environments seen in the films and which has several theaters where you can see several famous characters. Outside the city of Vimmerby you will also find several of the real filming locations of the films, such as Bullerbyn and Katthult, where everything has been preserved exactly as you remember it. Astrid Lindgren's childhood home, Näs, can also be visited.
But Vimmerby of course has more than this to offer. Here are several hiking and biking trails through forests and the classic Småland landscape with pastures, wide open fields and red small cottages. In and around Vimmerby there are also many lakes and bathing places to choose from or discover for yourself during their hikes. A calmer but equally exciting excursion can be to Virum elk park where you can now go on safari and see moose and fallow deer in their natural environment.
For more speed and fan, there is also Björkbacken, with adventure golf and a water playground that mixes cooling baths with fun activities for the whole family. Lots of crafts are nearby as well. Visit Mariannelund's caramel cookery, Käbbo wax candle manufacturing, Vimmerby pottery or Åbro brewery to buy locally made, and often handmade products. In some cases, you get to see for yourself how the production is done!
Good to know about the accommodation:
A charger for electric vehicles is available and can be used for a fee upon agreement with the owner.
Pets are welcome!
Electricity is included, except for charging electric vehicles, which incurs an additional cost upon agreement with the owner.
Bed linen and towels are NOT available in the house – please bring your own.
Final cleaning is NOT included in the price so the house MUST be cleaned before departure.
Things to see and do in Vimmerby and the surrounding area
20 minutes away you have the nearest town, Vimmerby, known for having been one of Sweden's most famous authors, Astrid Lindgren's hometown. There is a lot to do here in connection with Astrid Lindgren and all the stories she wrote that have become so beloved in Sweden and the world. Of course, there is a theme park called Astrid Lindgren's world which has recreated many of the environments seen in the films and which has several theaters where you can see several famous characters. Outside the city of Vimmerby you will also find several of the real filming locations of the films, such as Bullerbyn and Katthult, where everything has been preserved exactly as you remember it. Astrid Lindgren's childhood home, Näs, can also be visited.
But Vimmerby of course has more than this to offer. Here are several hiking and biking trails through forests and the classic Småland landscape with pastures, wide open fields and red small cottages. In and around Vimmerby there are also many lakes and bathing places to choose from or discover for yourself during their hikes. A calmer but equally exciting excursion can be to Virum elk park where you can now go on safari and see moose and fallow deer in their natural environment.
For more speed and fan, there is also Björkbacken, with adventure golf and a water playground that mixes cooling baths with fun activities for the whole family. Lots of crafts are nearby as well. Visit Mariannelund's caramel cookery, Käbbo wax candle manufacturing, Vimmerby pottery or Åbro brewery to buy locally made, and often handmade products. In some cases, you get to see for yourself how the production is done!
Good to know about the accommodation:
A charger for electric vehicles is available and can be used for a fee upon agreement with the owner.
Pets are welcome!
Electricity is included, except for charging electric vehicles, which incurs an additional cost upon agreement with the owner.
Bed linen and towels are NOT available in the house – please bring your own.
Final cleaning is NOT included in the price so the house MUST be cleaned before departure.
Distribution of bedrooms
1 Double bed
2 Double beds
1 Single bed
Special features
17 km to city
Garden
Terrace
Open-air parking
Kitchen
Refrigerator
Microwave
Oven
Freezer
Dishes/Cutlery
Kitchen utensils
Coffee machine
Toaster
Hob
Bathroom(s)
1 Bathroom with shower
General
1 TV
Radio
Garden
Garden furniture
15 m² terrace
Barbecue
Fireplace
Iron
Hair dryer
80 m² Property
4,000 m² Plot
Pet-friendly
Pet-friendly
Dangerous breed dogs not allowed
Central heating
Open-air parking the same building
Open-air parking the same building
3 spaces
Private entrance
Parties/events not allowed
Electric vehicle charging station
Smoke detector
Not supplied
Bed linen
Towels
Mandatory or included services
Electricity: Included
Heating: Included
Heating
Heating can be ordered or included, see accommodation description.
Optional services
Open-air parking: Included
Open-air parking
Parking is available.
Pet: Included
Pet
In this accommodation you are allowed to bring pets.
Your schedule
Check-in from 16:00 to 20:00 Saturday
Check-outBefore 10:00
Comments
- This accommodation does not accept groups of young people (Up to 21 years)
- No smoking
- Animals are admitted to this accommodation, except for dangerous animals
- No smoking
- Animals are admitted to this accommodation, except for dangerous animals
Booking conditions
From the booking date until 43 days before check-in, cancellation would have a penalty of 40% of the total price of the rent.
Cancellation policies
In case of cancellation the following charges will apply
From the booking date until 43 days before check-in
40% of the total rent
From 42 days before until check-in
100% of the total rent
No-show
100% of the total rent
Map and distances
-
Distances
Lake
1.5 km
Restaurant
14 km
Shops
14 km
Amusement park / theme park - Astrid Lindgrens värld
17 km
Town centre - Vimmerby
17 km
International airport - Jönköping Airport
120 km
Availability calendar
| April - 2026 | ||||||
| Mon | Tue | Wed | Thur | Fri | Sat | Sun |
| 1 | 2 | 3 | 4 | 5 | ||
| 6 | 7 | 8 | 9 | 10 | 11 | 12 |
| 13 | 14 | 15 | 16 | 17 | 18 | 19 |
| 20 | 21 | 22 | 23 | 24 | 25 | 26 |
| 27 | 28 | 29 | 30 | |||
| May - 2026 | ||||||
| Mon | Tue | Wed | Thur | Fri | Sat | Sun |
| 1 | 2 | 3 | ||||
| 4 | 5 | 6 | 7 | 8 | 9 | 10 |
| 11 | 12 | 13 | 14 | 15 | 16 | 17 |
| 18 | 19 | 20 | 21 | 22 | 23 | 24 |
| 25 | 26 | 27 | 28 | 29 | 30 | 31 |
| June - 2026 | ||||||
| Mon | Tue | Wed | Thur | Fri | Sat | Sun |
| 1 | 2 | 3 | 4 | 5 | 6 | 7 |
| 8 | 9 | 10 | 11 | 12 | 13 | 14 |
| 15 | 16 | 17 | 18 | 19 | 20 | 21 |
| 22 | 23 | 24 | 25 | 26 | 27 | 28 |
| 29 | 30 | |||||
| July - 2026 | ||||||
| Mon | Tue | Wed | Thur | Fri | Sat | Sun |
| 1 | 2 | 3 | 4 | 5 | ||
| 6 | 7 | 8 | 9 | 10 | 11 | 12 |
| 13 | 14 | 15 | 16 | 17 | 18 | 19 |
| 20 | 21 | 22 | 23 | 24 | 25 | 26 |
| 27 | 28 | 29 | 30 | 31 | ||
| August - 2026 | ||||||
| Mon | Tue | Wed | Thur | Fri | Sat | Sun |
| 1 | 2 | |||||
| 3 | 4 | 5 | 6 | 7 | 8 | 9 |
| 10 | 11 | 12 | 13 | 14 | 15 | 16 |
| 17 | 18 | 19 | 20 | 21 | 22 | 23 |
| 24 | 25 | 26 | 27 | 28 | 29 | 30 |
| 31 | ||||||
| September - 2026 | ||||||
| Mon | Tue | Wed | Thur | Fri | Sat | Sun |
| 1 | 2 | 3 | 4 | 5 | 6 | |
| 7 | 8 | 9 | 10 | 11 | 12 | 13 |
| 14 | 15 | 16 | 17 | 18 | 19 | 20 |
| 21 | 22 | 23 | 24 | 25 | 26 | 27 |
| 28 | 29 | 30 | ||||
Price lists
|
Dates
Price per week (VAT included)
*
|
|
|---|---|
| 11/04/2026 · 08/05/2026 |
€ 897 |
| 09/05/2026 · 15/05/2026 |
€ 987 |
| 16/05/2026 · 05/06/2026 |
€ 897 |
| 06/06/2026 · 19/06/2026 |
€ 987 |
| 20/06/2026 · 14/08/2026 |
€ 1,112 |
| 15/08/2026 · 21/08/2026 |
€ 987 |
Similar properties
-
Here you live comfortably in a large, grand villa in the middle of Vimmerby, where you are close to Vimmerby's entire range of shopping, restaurants and entertainment.
On the entrance floor you will find a spacious hall, a large living room furnished with comfortable sofas, a large lovely kitchen with a large dining table where everyone can sit, a TV room and a toilet.
On the upper floor you will find two bedrooms furnished with double beds, one bedroom with a sofa bed for two people and one bedroom with two single beds. Two furnished balconies. Large fully tiled bathroom with bathtub and a separate toilet. The plot is large where you can play football or engage in other ball activities. Here you will also find the furnished greenhouse, where you can sit in the evenings and relax.
Things to see and do in the area
Here you live within walking distance of Astrid Lindgren's World, which is a fabulous place for both young and old. Or you can visit Astrid Lindgren's Näs. This is where Astrid Lindgren was born and raised. This is the place where she has been inspired for many of her stories and books. You can also visit the MX World Collection, which is one of Europe's largest museums for those who like motorcycles in general and motocross in particular. They have a collection of over 350 different bikes and it is a world-class collection that you can view on site. Just outside Vimmerby you can go to Bullerbyn and you can also visit Katthult, where the Emil films were filmed. If you want to experience moose up close and also pet them, you can go to Virum elk park.
The coastal town of Västervik, which has been named Sweden's best summer town in 2020 and 2021, is a 40-minute drive away. Here you can walk and shop in galleries, shops and maybe find some bargains in the flea markets, or eat a good meal down in the harbor. If you want to swim, you can go to the nice Lysingsbadet, which has an adventure pool. If you want to go to a good spa facility, go to the fantastic Gränsö Castle. You can also take a boat trip out to one of the islands in the beautiful archipelago.
Good to know about the accommodation
Wifi and electricity are included in the price
A mandatory cleaning fee of 3800 SEK is added
Bring your own bed linen and towels.
Other relevant information
Accommodation Registration Number
SE05017