› Vimmerby › SE05017
SE05017
Vimmerby - Stuga
Tillgänglighet och priser
Boende
Beskrivning
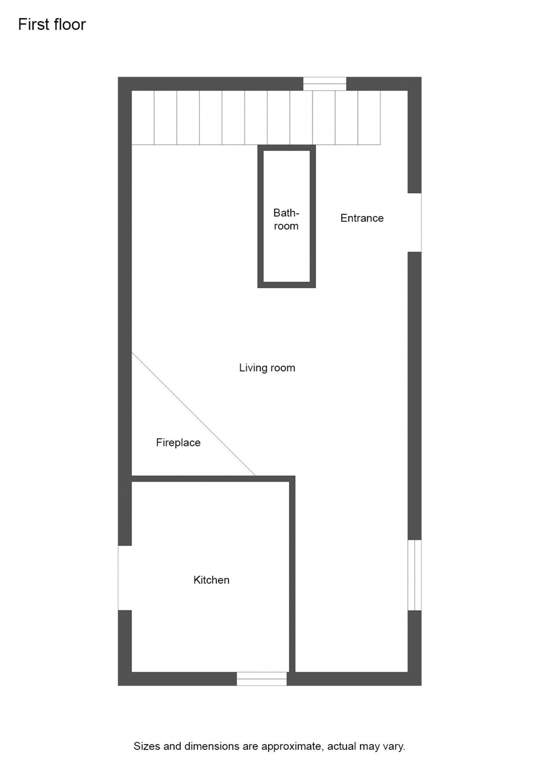
Välkommna till den här lantliga stugan med stor trädgård och en sjö med brygga på promenadavstånd. Stugan har två plan och två sovrum med sovplatser för sju personer plus dusch och toalett. Köket är litet men charmigt men trädgården är stor och här finns också en terass med med utemöbler för att kunna äta familjemiddagen utomhus om sommarkvällarna. Grill finns också om man vill ha grillkväll.
Att se och göra i Vimmerby och närområdet
20 minuter bort har ni närmaste stad, Vimmerby, känd för att ha varit en av Sveriges mest kända författare, Astrid Lindgrens, hemstad. Mycket finns att göra här med koppling till Astrid Lindgren och alla de berättelser hon skrev som blivit så älskade i Sverige och världen. Främst finns ju såklart temaparken Astrid Lindgrens värld som återskapat många av de miljöer som syns i fimerna och som har flera teatrar där man kan se flera kända karaktärer. Utanför staden Vimmerby hittar man också flera av de riktiga filminspelningsplatserna av filmerna, som Bullerbyn och Katthult, där allt bevarats precis som man minns det. Även Astrid Lindgrens barndomshem, Näs, finns att besöka.
Men Vimmerby har såklart mer än detta att erbjuda. Här finns flera vandrings- och cykelleder genom skogar och det klassiska smålandslandskapet med hagar, vidöppna fält och röda små stugor. I och runt Vimmerby finns också många sjöar och badplatser att välja på eller upptäcka själv under sina vandringar. En lugnare men lika spännande utflykt kan vara till Virum älgpark där nu kan åka på safari och se älgar och dovhjortar i sin naturliga miljö.
För mera fart och fläkt finns även Björkbacken, med äventyrsgolf och en vattenlekplats som blandar svalkande bad med roliga aktiviteter för hela familjen. Mycket hantverk finns i närheten också. Besök Mariannelunds karamellkokeri, Käbbo vaxljustillverkning, Vimmerby krukmakeri eller Åbro bryggeri för att köpa lokaltillverkade, och ofta handgjorda produkter. I vissa fall får du själv se hur tillverkningen går till!
Bra att veta om boendet
Laddare för elbil finns tillgänglig och kan användas mot betalning efter överenskommelse med ägaren.
El ingår förutom laddning av elbil, där tillkommer kostnad efter överenskommelse med ägaren
Husdjur välkomna!
Sängkläder och handdukar FINNS INTE tillgängligt i huset – vänligen ta med egna.
Slutstädning ingår INTE i priset så huset SKALL städas innan avresa
Att se och göra i Vimmerby och närområdet
20 minuter bort har ni närmaste stad, Vimmerby, känd för att ha varit en av Sveriges mest kända författare, Astrid Lindgrens, hemstad. Mycket finns att göra här med koppling till Astrid Lindgren och alla de berättelser hon skrev som blivit så älskade i Sverige och världen. Främst finns ju såklart temaparken Astrid Lindgrens värld som återskapat många av de miljöer som syns i fimerna och som har flera teatrar där man kan se flera kända karaktärer. Utanför staden Vimmerby hittar man också flera av de riktiga filminspelningsplatserna av filmerna, som Bullerbyn och Katthult, där allt bevarats precis som man minns det. Även Astrid Lindgrens barndomshem, Näs, finns att besöka.
Men Vimmerby har såklart mer än detta att erbjuda. Här finns flera vandrings- och cykelleder genom skogar och det klassiska smålandslandskapet med hagar, vidöppna fält och röda små stugor. I och runt Vimmerby finns också många sjöar och badplatser att välja på eller upptäcka själv under sina vandringar. En lugnare men lika spännande utflykt kan vara till Virum älgpark där nu kan åka på safari och se älgar och dovhjortar i sin naturliga miljö.
För mera fart och fläkt finns även Björkbacken, med äventyrsgolf och en vattenlekplats som blandar svalkande bad med roliga aktiviteter för hela familjen. Mycket hantverk finns i närheten också. Besök Mariannelunds karamellkokeri, Käbbo vaxljustillverkning, Vimmerby krukmakeri eller Åbro bryggeri för att köpa lokaltillverkade, och ofta handgjorda produkter. I vissa fall får du själv se hur tillverkningen går till!
Bra att veta om boendet
Laddare för elbil finns tillgänglig och kan användas mot betalning efter överenskommelse med ägaren.
El ingår förutom laddning av elbil, där tillkommer kostnad efter överenskommelse med ägaren
Husdjur välkomna!
Sängkläder och handdukar FINNS INTE tillgängligt i huset – vänligen ta med egna.
Slutstädning ingår INTE i priset så huset SKALL städas innan avresa
Fördelning av sovrum & sängplatser
1 Dubbelsäng(ar)
2 Dubbelsäng(ar)
1 Enkelsäng(ar)
Faciliteter
17 km till stad
Trädgård
Terrass
Utomhus parkeringsplats
Kök
Kyl
Mikrovågsugn
Ugn
Frys
Tallrikar/Bestick
Köksredskap
Kaffemaskin
Brödrost
Spis
Badrum
1 Badrum med dusch
Generell information
1 TV
Radio
Trädgård
Trädgårdsmöbler
15 m² terrass
Grill
Öppen spis
Strykjärn
Hårtork
80 m² boyta
4.000 m² tomt
Husdjur är tillåtna
Husdjur är tillåtna
Farliga rashundar är inte tillåtna
Centralvärme
Utomhus parkeringsplats på plats
Utomhus parkeringsplats på plats
3 platser
Privat ingång
Brandvarnare
Service erbjuds ej
Sänglinnen
handdukar
Service: Inklusive eller exklusive
Elkostnad: inkluderad
Uppvärmning: inkluderad
Uppvärmning
Värme kan beställas eller ingår, se boendebeskrivning.
Service: Valbara
Husdjur: inkluderad
Husdjur
I detta boende är det tillåtet att ta med husdjur.
Utomhus parkeringsplats: inkluderad
Utomhus parkeringsplats
Parkering är tillgänglig.
Planera din vistelse
Ankomst Lördag från 16:00 till 20:00
AvresaFöre 10:00
Viktig information
- Detta boende accepterar inte ungdomsgrupper (Upp till 21 år)
- Ej rökning
- Husdjur är tillåtna med undantag aggressiva raser
- Ej rökning
- Husdjur är tillåtna med undantag aggressiva raser
Villkor
Från bokningsdatum till 43 dagar till ankomstdagen är avbokningsavgiften 40% av hyresbeloppet.
Avbokningsregler
Om du väljer att avboka din bokning kommer du bli debiterad på följande avbokningsavgifter
Från bokningsdagen till 43 dagar till ankomstdagen
40% av hyresbeloppet
Från 42 dagar till ankomstdagen
100% av hyresbeloppet
Vid utebliven ankomst
100% av hyresbeloppet
Karta och avstånd
-
Avstånd
Avstånd till sjö
1,5 km
Avstånd till restaurang
14 km
Avstånd till mataffär
14 km
Avstånd till nöjespark, Astrid Lindgrens värld
17 km
Avstånd till stad, Vimmerby
17 km
Avstånd till flyplats, Jönköping Airport
120 km
Kalender
| April - 2026 | ||||||
| Mån | Tis | Ons | Tors | Fre | Lör | Sön |
| 1 | 2 | 3 | 4 | 5 | ||
| 6 | 7 | 8 | 9 | 10 | 11 | 12 |
| 13 | 14 | 15 | 16 | 17 | 18 | 19 |
| 20 | 21 | 22 | 23 | 24 | 25 | 26 |
| 27 | 28 | 29 | 30 | |||
| Maj - 2026 | ||||||
| Mån | Tis | Ons | Tors | Fre | Lör | Sön |
| 1 | 2 | 3 | ||||
| 4 | 5 | 6 | 7 | 8 | 9 | 10 |
| 11 | 12 | 13 | 14 | 15 | 16 | 17 |
| 18 | 19 | 20 | 21 | 22 | 23 | 24 |
| 25 | 26 | 27 | 28 | 29 | 30 | 31 |
| Juni - 2026 | ||||||
| Mån | Tis | Ons | Tors | Fre | Lör | Sön |
| 1 | 2 | 3 | 4 | 5 | 6 | 7 |
| 8 | 9 | 10 | 11 | 12 | 13 | 14 |
| 15 | 16 | 17 | 18 | 19 | 20 | 21 |
| 22 | 23 | 24 | 25 | 26 | 27 | 28 |
| 29 | 30 | |||||
| Juli - 2026 | ||||||
| Mån | Tis | Ons | Tors | Fre | Lör | Sön |
| 1 | 2 | 3 | 4 | 5 | ||
| 6 | 7 | 8 | 9 | 10 | 11 | 12 |
| 13 | 14 | 15 | 16 | 17 | 18 | 19 |
| 20 | 21 | 22 | 23 | 24 | 25 | 26 |
| 27 | 28 | 29 | 30 | 31 | ||
| Augusti - 2026 | ||||||
| Mån | Tis | Ons | Tors | Fre | Lör | Sön |
| 1 | 2 | |||||
| 3 | 4 | 5 | 6 | 7 | 8 | 9 |
| 10 | 11 | 12 | 13 | 14 | 15 | 16 |
| 17 | 18 | 19 | 20 | 21 | 22 | 23 |
| 24 | 25 | 26 | 27 | 28 | 29 | 30 |
| 31 | ||||||
| September - 2026 | ||||||
| Mån | Tis | Ons | Tors | Fre | Lör | Sön |
| 1 | 2 | 3 | 4 | 5 | 6 | |
| 7 | 8 | 9 | 10 | 11 | 12 | 13 |
| 14 | 15 | 16 | 17 | 18 | 19 | 20 |
| 21 | 22 | 23 | 24 | 25 | 26 | 27 |
| 28 | 29 | 30 | ||||
Prislistor
|
Datum
Pris per vecka (Moms ingår)
*
|
|
|---|---|
| 11/04/2026 · 08/05/2026 |
897 € |
| 09/05/2026 · 15/05/2026 |
987 € |
| 16/05/2026 · 05/06/2026 |
897 € |
| 06/06/2026 · 19/06/2026 |
987 € |
| 20/06/2026 · 14/08/2026 |
1.112 € |
| 15/08/2026 · 21/08/2026 |
987 € |
Liknande boenden
-
Här bor ni bekvämt i en stor pampig villa mitt i Vimmerby, där ni har närhet till hela Vimmerbys utbud av shopping, restauranger och nöjen.
På entréplanet finner ni en rymlig hall, ett stort vardagsrum möblerat med bekväma soffor, stort härligt kök med stort matbord där alla får plats, ett tv-rum samt en toalett.
På övre våningen finner ni två sovrum möblerade med dubbelsängar, ett sovrum med bäddsoffa för två personer och det ett sovrum med två enkelsängar. Två möblerbara balkonger. Stort helkaklat badrum med badkar samt en separat toalett. Tomten är rejäl där ni kan spela fotboll eller ägna er åt andra bollaktiviteter. Här finner ni även den möblerade växthuset, där ni kan sitta på kvällarna och koppla av.
Att se och göra i närområdet
Här bor ni med promenadavstånd till Astrid Lindgrens Värld som är en sagolik plats för både stora och små. Eller så kan ni besöka Astrid Lindgrens Näs. Här föddes och växte Astrid Lindgren upp. Detta är platsen där hon har inspirerats till många av sina berättelse och böcker. Ni kan även besöka MX World Collection som är ett av Europas största museum för dig som gillar motorcyklar i allmänhet och motocross i synnerhet. De har en samling av över 350 olika cyklar och det är en världsunik samling du kan beskåda på plats. Strax utanför Vimmerby kan ni ta er till Bullerbyn och ni kan även göra ett besöka till Katthult, där Emil filmerna spelades in. Vill ni uppleva älgar på nära håll och även klappa dem, kan ni ta er till Virum älgpark.
Till kuststaden Västervik som har utsetts till Sveriges bästa sommarstad 2020 och 2021, kör ni till på 40 minuter. Här kan ni promenera och shoppa i gallerier, butiker och kanske göra lite fynd i loppisbutikerna, eller äta en god bit mat nere i hamnen. Om ni vill bada kan ni ta er till det fina Lysingsbadet som har äventyrsbad. Vill ni åka till en bra spaanläggning tar ni er till fantastiska fina Gränsö slott. Ni kan även ta en båttur ut till en av alla de öar som finns i den fina skärgården.
Bra att veta om boendet
Wifi och elförbrukningen ingår i priset
En obligatorisk städavgift tillkommer på 3800 SEK
Medtag egna sänglinnen och handdukar.
Annan intressant information
Turistregistreringsnummer
SE05017