› Färjestaden › SE04040
SE04040
Färjestaden - House
Availability and prices
Accommodation
Description
The cottage is located in a quiet area and only a 10-minute walk to the harbor in Färjestaden.
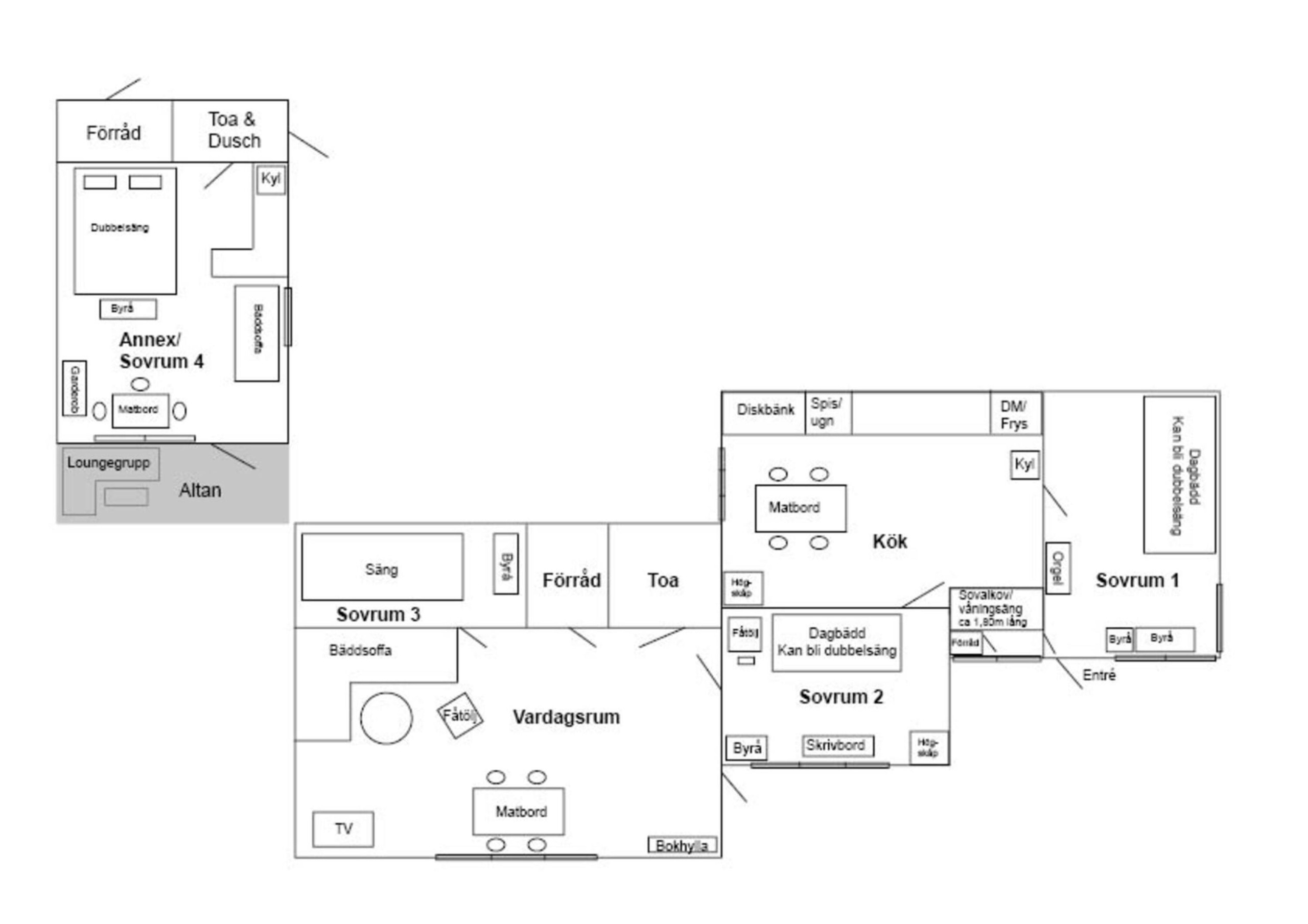
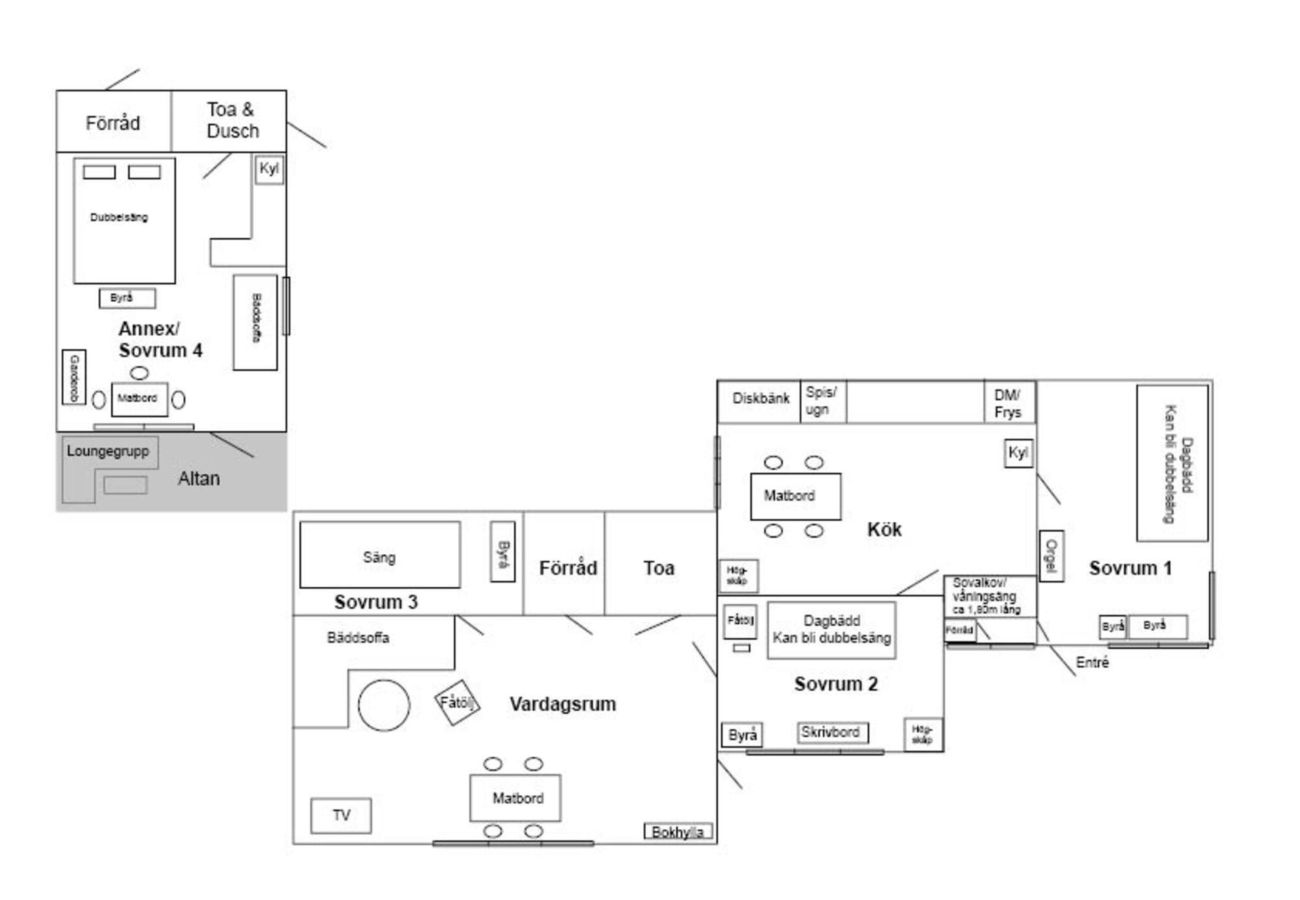
The house consists of a pleasant living room furnished with a dining table and a comfortable sofa group as well as Tv. Next to it you will find a toilet and one of the bedrooms with a single bed. From the living room you then reach the kitchen via a walk-through room that is furnished with a sofa bed and an armchair. The kitchen is practical and well equipped for your stay. From here you reach the second bedroom which is furnished with a sofa bed and with access to the garden. In the nice annex you will find a double bed, a sofa bed and a shower and toilet. The shower/toilet can also be reached from the outside. At the entrance you will find a furnished covered terrace, where you can sit and relax during the day. Also in the small garden you have access to an outdoor group, where you can have your breakfast or dinner.
Here you will live well in a nice area and close to Färjestaden
To see and do in Färjestaden and the surrounding area
In a few minutes walk you will come to Färjestaden with its large selection of restaurants down by the harbor and the mall with shops. There are also fine sandy beaches, a beach volleyball court, padelhalls and miniature golf courses. If you want to play golf, Saxnäs' fine golf course is just 15 minutes away. For the children, you can take a trip to Öland's zoo and amusement park, which can be an experience for them. You can also visit the royal palace Solliden or Borgholm with all its shops and restaurants. Why not take a trip to Kalmar with its castle or Skälby farm which is located just outside the city where you have close contact with the farm's animals. It is really popular with families with children. Your can also visit A world of dinosaurs – Europe's largest dinosaur museum.
Good to know about the accommodation
Bed linen and towels are NOT available in the house – please bring your own.
Final cleaning is mandatory and cost 1800 SEK/stay.
Electricity and WLAN is included in the price.
The house consists of a pleasant living room furnished with a dining table and a comfortable sofa group as well as Tv. Next to it you will find a toilet and one of the bedrooms with a single bed. From the living room you then reach the kitchen via a walk-through room that is furnished with a sofa bed and an armchair. The kitchen is practical and well equipped for your stay. From here you reach the second bedroom which is furnished with a sofa bed and with access to the garden. In the nice annex you will find a double bed, a sofa bed and a shower and toilet. The shower/toilet can also be reached from the outside. At the entrance you will find a furnished covered terrace, where you can sit and relax during the day. Also in the small garden you have access to an outdoor group, where you can have your breakfast or dinner.
Here you will live well in a nice area and close to Färjestaden
To see and do in Färjestaden and the surrounding area
In a few minutes walk you will come to Färjestaden with its large selection of restaurants down by the harbor and the mall with shops. There are also fine sandy beaches, a beach volleyball court, padelhalls and miniature golf courses. If you want to play golf, Saxnäs' fine golf course is just 15 minutes away. For the children, you can take a trip to Öland's zoo and amusement park, which can be an experience for them. You can also visit the royal palace Solliden or Borgholm with all its shops and restaurants. Why not take a trip to Kalmar with its castle or Skälby farm which is located just outside the city where you have close contact with the farm's animals. It is really popular with families with children. Your can also visit A world of dinosaurs – Europe's largest dinosaur museum.
Good to know about the accommodation
Bed linen and towels are NOT available in the house – please bring your own.
Final cleaning is mandatory and cost 1800 SEK/stay.
Electricity and WLAN is included in the price.
Distribution of bedrooms
1 Single bed
1 Sofa bed double
1 Double bed
1 Sofa bed double
Special features
500 m to sandy beach
500 m to city
Internet
Garden
Kitchen (electric)
Refrigerator
Microwave
Oven
Freezer
Dishwasher
Dishes/Cutlery
Kitchen utensils
Coffee machine
Toaster
Kettle
Hob
Bathroom(s)
1 Bathroom with shower
1 Toilet
Views
Garden
General
1 TV
Garden
Garden furniture
10 m² terrace
Barbecue
Internet
Internet
Wi-Fi
88 m² Property
1,356 m² Plot
Electric heating
Open-air parking the same building
Open-air parking the same building
2 spaces
Private entrance
Parties/events not allowed
Smoke detector
Not supplied
Bed linen
Towels
Mandatory or included services
Electricity: Included
Final Cleaning: € 166.25 / booking
Final Cleaning
The cleaning fee is mandatory and is to be paid with the last payment before arrival.
Heating: Included
Heating
Heating can be ordered or included, see accommodation description.
Internet Access: Included
Internet Access
You have free internet access either via wifi or cable. For more information please see the house description.
Optional services
Open-air parking: Included
Open-air parking
Parking is available.
Your schedule
Check-in from 16:00 to 20:00 Saturday
Check-outBefore 10:00
Comments
- This accommodation does not accept groups of young people (Up to 21 years)
- No smoking
- No pets allowed
- No smoking
- No pets allowed
Booking conditions
From the booking date until 43 days before check-in, cancellation would have a penalty of 40% of the total price of the rent.
Cancellation policies
In case of cancellation the following charges will apply
From the booking date until 43 days before check-in
40% of the total rent
From 42 days before until check-in
100% of the total rent
No-show
100% of the total rent
Map and distances
-
Distances
Sand beach
500 m
Town centre - Färjestaden
500 m
Shops
500 m
Restaurant
500 m
International airport - Kalmar Öland Airport
18.01 km
Airport - Kalmar Öland Airport
18.01 km
Availability calendar
| April - 2026 | ||||||
| Mon | Tue | Wed | Thur | Fri | Sat | Sun |
| 1 | 2 | 3 | 4 | 5 | ||
| 6 | 7 | 8 | 9 | 10 | 11 | 12 |
| 13 | 14 | 15 | 16 | 17 | 18 | 19 |
| 20 | 21 | 22 | 23 | 24 | 25 | 26 |
| 27 | 28 | 29 | 30 | |||
| May - 2026 | ||||||
| Mon | Tue | Wed | Thur | Fri | Sat | Sun |
| 1 | 2 | 3 | ||||
| 4 | 5 | 6 | 7 | 8 | 9 | 10 |
| 11 | 12 | 13 | 14 | 15 | 16 | 17 |
| 18 | 19 | 20 | 21 | 22 | 23 | 24 |
| 25 | 26 | 27 | 28 | 29 | 30 | 31 |
| June - 2026 | ||||||
| Mon | Tue | Wed | Thur | Fri | Sat | Sun |
| 1 | 2 | 3 | 4 | 5 | 6 | 7 |
| 8 | 9 | 10 | 11 | 12 | 13 | 14 |
| 15 | 16 | 17 | 18 | 19 | 20 | 21 |
| 22 | 23 | 24 | 25 | 26 | 27 | 28 |
| 29 | 30 | |||||
| July - 2026 | ||||||
| Mon | Tue | Wed | Thur | Fri | Sat | Sun |
| 1 | 2 | 3 | 4 | 5 | ||
| 6 | 7 | 8 | 9 | 10 | 11 | 12 |
| 13 | 14 | 15 | 16 | 17 | 18 | 19 |
| 20 | 21 | 22 | 23 | 24 | 25 | 26 |
| 27 | 28 | 29 | 30 | 31 | ||
| August - 2026 | ||||||
| Mon | Tue | Wed | Thur | Fri | Sat | Sun |
| 1 | 2 | |||||
| 3 | 4 | 5 | 6 | 7 | 8 | 9 |
| 10 | 11 | 12 | 13 | 14 | 15 | 16 |
| 17 | 18 | 19 | 20 | 21 | 22 | 23 |
| 24 | 25 | 26 | 27 | 28 | 29 | 30 |
| 31 | ||||||
| September - 2026 | ||||||
| Mon | Tue | Wed | Thur | Fri | Sat | Sun |
| 1 | 2 | 3 | 4 | 5 | 6 | |
| 7 | 8 | 9 | 10 | 11 | 12 | 13 |
| 14 | 15 | 16 | 17 | 18 | 19 | 20 |
| 21 | 22 | 23 | 24 | 25 | 26 | 27 |
| 28 | 29 | 30 | ||||
Price lists
|
Dates
Price per week (VAT included)
*
|
|
|---|---|
| 11/04/2026 · 08/05/2026 |
€ 750 |
| 09/05/2026 · 15/05/2026 |
€ 1,000 |
| 16/05/2026 · 05/06/2026 |
€ 750 |
| 06/06/2026 · 19/06/2026 |
€ 1,000 |
| 20/06/2026 · 14/08/2026 |
€ 1,250 |
| 15/08/2026 · 21/08/2026 |
€ 1,000 |
Special offers
*|
Discount of 25% for bookings of more than 30 nights
From 11/04/2026 to 08/05/2026
|
25%
discount
|
|
Discount of 15% for bookings of more than 20 nights
From 11/04/2026 to 08/05/2026
|
15%
discount
|
|
Discount of 10% for bookings of more than 13 nights
From 11/04/2026 to 08/05/2026
|
10%
discount
|
|
Discount of 25% for bookings of more than 30 nights
From 16/05/2026 to 05/06/2026
|
25%
discount
|
Similar properties
-
Fantastic house that offers a perfect combination of comfort and modern style located 300 meters from the harbor with sandy beach and pleasant restaurants. Ideal for a relaxing holiday, with all the amenities you could wish for.
Cozy living room where you can relax in front of the TV with adjacent dining room. From here you come directly out onto the patio deck, an ideal place for relaxation and social moments under the open sky. The modern kitchen is fully equipped and ready for culinary adventures. With three spacious bedrooms, there is plenty of room for everyone. One with a double bed, one with a bunk bed and one with a sofa bed. Two nice fully tiled bathrooms where you have a washing machine in one.
To see and do in Stora Rör and the surrounding area
Stora Rör is an idyllic and charming small port village on Öland's west coast. This little gem is one of the island's most loved destinations, known for its picturesque harbour, where there is a nice restaurant, a restyled summer cafe and nowadays a small Pub "Hökarboden" which also serves pizza. Here you can enjoy nice summer evenings with wonderful sunsets over Kalmarsund.
For those who like exercise, there are tennis courts and padel courts, outside the house. If you want to take the bike, there are many nice cycle paths to choose from both along the coast and in Rällaskogen. Ekerum Golf is only a 5-minute drive north. Borgholm Castle Ruin is an interesting destination, there is also Solliden which is the summer residence of the King and Queen, which has an open garden where you can enjoy a nice summer day, it is only 15km north. Öland has lots of attractions, fine sandy beaches and farm shops to discover.
Good to know about the accommodation
• Bed linen and towels are not available in the house – please bring your own.
• Final cleaning is not included in the price so the house must be cleaned before departure.
• Electricity is included in the price.
• Pets are not allowed in the house.
• NO SMOKING!!
• NO YOUTH GROUPS!!
Other relevant information
Accommodation Registration Number
SE04040