› Färjestaden › SE04040
SE04040
Färjestaden - Stuga
Tillgänglighet och priser
Boende
Beskrivning
Stugan ligger i ett lugnt område och på bara 10 minuters gångväg till hamnen i Färjestaden.
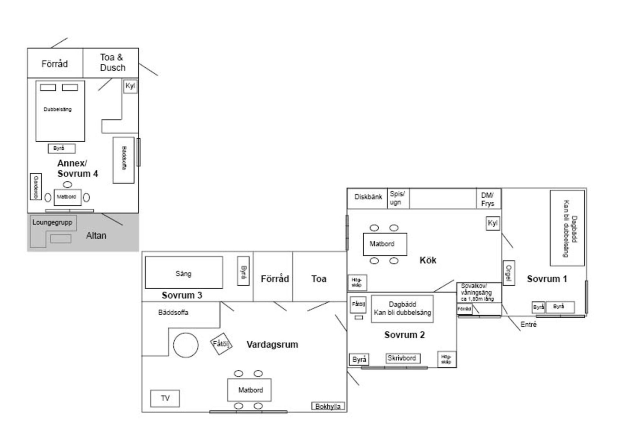
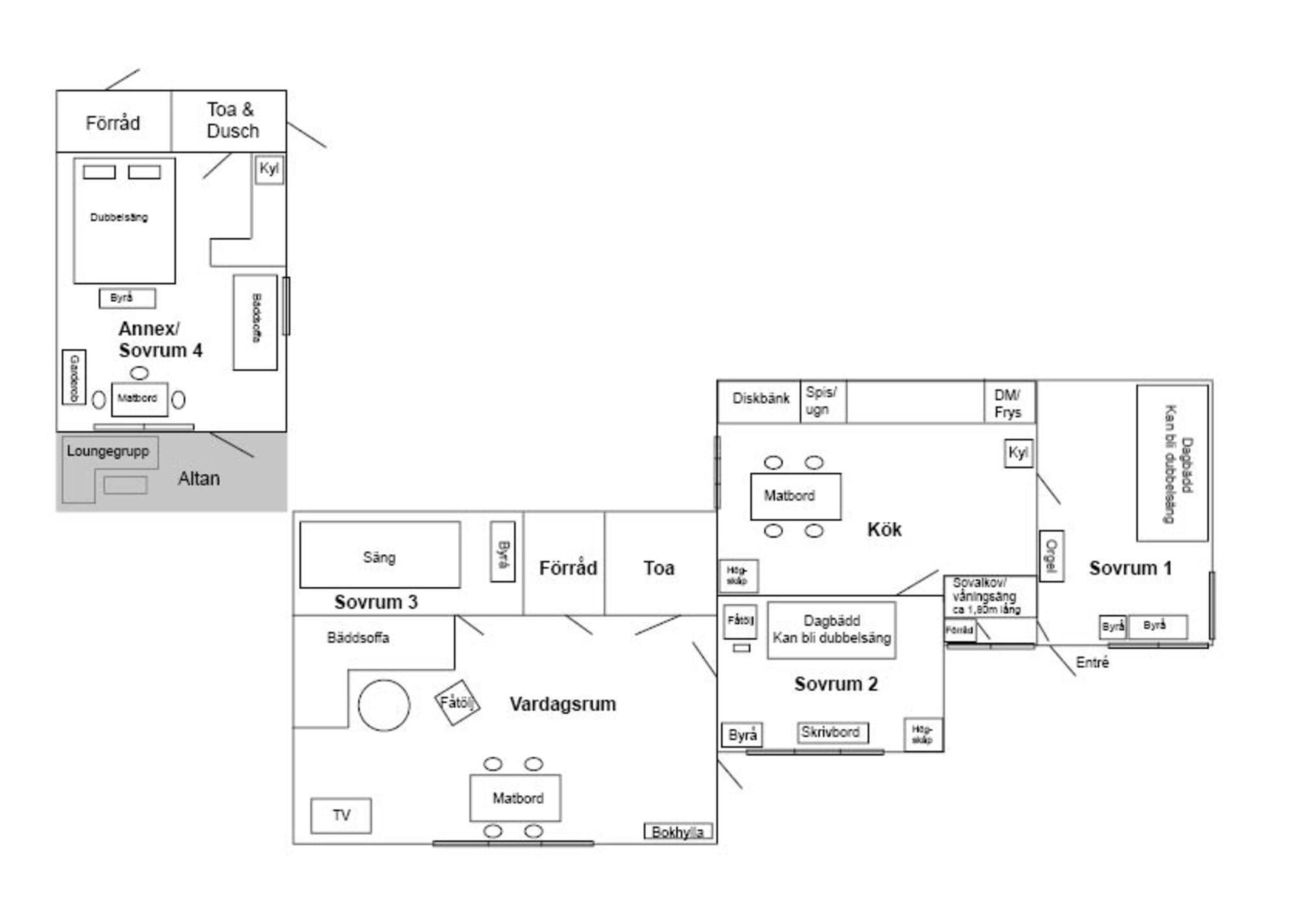
Huset består av ett trivsamt vardagsrum möblerat med ett matbord och en bekväm soffgrupp samt Tv. Intill finner ni en toalett och det ena sovrummet med en singelsäng. Från vardagsrummet når ni sedan köket via ett genomgångsrum som är möblerad med en bäddsoffa och en fåtölj. Köket är praktiskt och väl utrustat för er vistelse. Härifrån når ni sedan det andra sovrummet som är möblerat med en bäddsoffa och med utgång till trädgården. I det trevliga annexet finner ni en dubbelsäng, en bäddsoffa samt en dusch och toalett. Duschen/wc når ni även utifrån. Vid entrén finner ni en möblerad överbyggd altan, där ni kan sitta och koppla av på dagarna. Även i den lilla trädgården har ni tillgång till en utegrupp, där ni kan inta er frukost eller middag.
Här kommer ni bo bra i ett trevligt område och med närhet till Färjestaden
Att se och göra i Färjestaden och närområdet
På några minuters promenad kommer ni till Färjestaden med sitt stora utbud av restauranger nere vid hamnen samt en galleria med butiker. Här finns även fina sandstränder, en beachvolleybollplan, padelhallar och minigolfbanor. Vill ni spela golf finns Saxnäs fina golfbana bara 15 minuter bort. För barnen kan ni ta en tur till Ölands djur- och nöjespark som kan bli en upplevelse för dem. Ni kan även besöka det kungliga slottet Solliden eller Borgholm med alla sina butiker och restauranger. Eller varför inte ta en tur till Kalmar och besöka slottet eller Skälby gård som ligger strax utanför där man har närkontakt med gårdens djur. Det brukar vara populärt bland barnfamiljer. Så även A world of dinosaurs – Europas största dinosauriemuseum.
Bra att veta om boendet
Sängkläder och handdukar finns inte tillgängligt i huset – vänligen ta med egna.
Slutstädning är obligatorisk och kostar 1800 SEK/vistelse.
El och wifi ingår i priset.
Huset består av ett trivsamt vardagsrum möblerat med ett matbord och en bekväm soffgrupp samt Tv. Intill finner ni en toalett och det ena sovrummet med en singelsäng. Från vardagsrummet når ni sedan köket via ett genomgångsrum som är möblerad med en bäddsoffa och en fåtölj. Köket är praktiskt och väl utrustat för er vistelse. Härifrån når ni sedan det andra sovrummet som är möblerat med en bäddsoffa och med utgång till trädgården. I det trevliga annexet finner ni en dubbelsäng, en bäddsoffa samt en dusch och toalett. Duschen/wc når ni även utifrån. Vid entrén finner ni en möblerad överbyggd altan, där ni kan sitta och koppla av på dagarna. Även i den lilla trädgården har ni tillgång till en utegrupp, där ni kan inta er frukost eller middag.
Här kommer ni bo bra i ett trevligt område och med närhet till Färjestaden
Att se och göra i Färjestaden och närområdet
På några minuters promenad kommer ni till Färjestaden med sitt stora utbud av restauranger nere vid hamnen samt en galleria med butiker. Här finns även fina sandstränder, en beachvolleybollplan, padelhallar och minigolfbanor. Vill ni spela golf finns Saxnäs fina golfbana bara 15 minuter bort. För barnen kan ni ta en tur till Ölands djur- och nöjespark som kan bli en upplevelse för dem. Ni kan även besöka det kungliga slottet Solliden eller Borgholm med alla sina butiker och restauranger. Eller varför inte ta en tur till Kalmar och besöka slottet eller Skälby gård som ligger strax utanför där man har närkontakt med gårdens djur. Det brukar vara populärt bland barnfamiljer. Så även A world of dinosaurs – Europas största dinosauriemuseum.
Bra att veta om boendet
Sängkläder och handdukar finns inte tillgängligt i huset – vänligen ta med egna.
Slutstädning är obligatorisk och kostar 1800 SEK/vistelse.
El och wifi ingår i priset.
Fördelning av sovrum & sängplatser
1 Enkelsäng(ar)
1 Bäddsoffa(or) dubbel
1 Dubbelsäng(ar)
1 Bäddsoffa(or) dubbel
Faciliteter
500 m till sandstrand
500 m till stad
Internet
Trädgård
Kök (Elektrisk)
Kyl
Mikrovågsugn
Ugn
Frys
Diskmaskin
Tallrikar/Bestick
Köksredskap
Kaffemaskin
Brödrost
Vattenkokare
Spis
Badrum
1 Badrum med dusch
1 Toalett(er)
Utsikt
Trädgård
Generell information
1 TV
Trädgård
Trädgårdsmöbler
10 m² terrass
Grill
Internet
Internet
Wifi
88 m² boyta
1.356 m² tomt
Elektrisk värme
Utomhus parkeringsplats på plats
Utomhus parkeringsplats på plats
2 platser
Privat ingång
Brandvarnare
Service erbjuds ej
Sänglinnen
handdukar
Service: Inklusive eller exklusive
Elkostnad: inkluderad
Internet: inkluderad
Internet
Du har gratis tillgång till internet antingen via wifi eller kabel. För mer information vänligen se husbeskrivningen.
Slutstädning: 165,83 € /bokning
Slutstädning
Kostnad för städning är obligatorisk och betalas vid sista inbetalningen innan ankomst.
Uppvärmning: inkluderad
Uppvärmning
Värme kan beställas eller ingår, se boendebeskrivning.
Service: Valbara
Utomhus parkeringsplats: inkluderad
Utomhus parkeringsplats
Parkering är tillgänglig.
Planera din vistelse
Ankomst Lördag från 16:00 till 20:00
AvresaFöre 10:00
Viktig information
- Detta boende accepterar inte ungdomsgrupper (Upp till 21 år)
- Ej rökning
- Inga husdjur tillåtna
- Ej rökning
- Inga husdjur tillåtna
Villkor
Från bokningsdatum till 43 dagar till ankomstdagen är avbokningsavgiften 40% av hyresbeloppet.
Avbokningsregler
Om du väljer att avboka din bokning kommer du bli debiterad på följande avbokningsavgifter
Från bokningsdagen till 43 dagar till ankomstdagen
40% av hyresbeloppet
Från 42 dagar till ankomstdagen
100% av hyresbeloppet
Vid utebliven ankomst
100% av hyresbeloppet
Karta och avstånd
-
Avstånd
Avstånd till sandstrand
500 m
Avstånd till stad, Färjestaden
500 m
Avstånd till mataffär
500 m
Avstånd till restaurang
500 m
Avstånd till flyplats, Kalmar Öland Airport
18,01 km
Avstånd till flyplats, Kalmar Öland Airport
18,01 km
Kalender
| April - 2026 | ||||||
| Mån | Tis | Ons | Tors | Fre | Lör | Sön |
| 1 | 2 | 3 | 4 | 5 | ||
| 6 | 7 | 8 | 9 | 10 | 11 | 12 |
| 13 | 14 | 15 | 16 | 17 | 18 | 19 |
| 20 | 21 | 22 | 23 | 24 | 25 | 26 |
| 27 | 28 | 29 | 30 | |||
| Maj - 2026 | ||||||
| Mån | Tis | Ons | Tors | Fre | Lör | Sön |
| 1 | 2 | 3 | ||||
| 4 | 5 | 6 | 7 | 8 | 9 | 10 |
| 11 | 12 | 13 | 14 | 15 | 16 | 17 |
| 18 | 19 | 20 | 21 | 22 | 23 | 24 |
| 25 | 26 | 27 | 28 | 29 | 30 | 31 |
| Juni - 2026 | ||||||
| Mån | Tis | Ons | Tors | Fre | Lör | Sön |
| 1 | 2 | 3 | 4 | 5 | 6 | 7 |
| 8 | 9 | 10 | 11 | 12 | 13 | 14 |
| 15 | 16 | 17 | 18 | 19 | 20 | 21 |
| 22 | 23 | 24 | 25 | 26 | 27 | 28 |
| 29 | 30 | |||||
| Juli - 2026 | ||||||
| Mån | Tis | Ons | Tors | Fre | Lör | Sön |
| 1 | 2 | 3 | 4 | 5 | ||
| 6 | 7 | 8 | 9 | 10 | 11 | 12 |
| 13 | 14 | 15 | 16 | 17 | 18 | 19 |
| 20 | 21 | 22 | 23 | 24 | 25 | 26 |
| 27 | 28 | 29 | 30 | 31 | ||
| Augusti - 2026 | ||||||
| Mån | Tis | Ons | Tors | Fre | Lör | Sön |
| 1 | 2 | |||||
| 3 | 4 | 5 | 6 | 7 | 8 | 9 |
| 10 | 11 | 12 | 13 | 14 | 15 | 16 |
| 17 | 18 | 19 | 20 | 21 | 22 | 23 |
| 24 | 25 | 26 | 27 | 28 | 29 | 30 |
| 31 | ||||||
| September - 2026 | ||||||
| Mån | Tis | Ons | Tors | Fre | Lör | Sön |
| 1 | 2 | 3 | 4 | 5 | 6 | |
| 7 | 8 | 9 | 10 | 11 | 12 | 13 |
| 14 | 15 | 16 | 17 | 18 | 19 | 20 |
| 21 | 22 | 23 | 24 | 25 | 26 | 27 |
| 28 | 29 | 30 | ||||
Prislistor
|
Datum
Pris per vecka (Moms ingår)
*
|
|
|---|---|
| 11/04/2026 · 08/05/2026 |
748 € |
| 09/05/2026 · 15/05/2026 |
997 € |
| 16/05/2026 · 05/06/2026 |
748 € |
| 06/06/2026 · 19/06/2026 |
997 € |
| 20/06/2026 · 14/08/2026 |
1.247 € |
| 15/08/2026 · 21/08/2026 |
997 € |
Aktuella erbjudanden
*|
25% rabatt på din bokning när du bokar fler än 30 nätter
Från 11/04/2026 till 08/05/2026
|
25%
rabatt
|
|
15% rabatt på din bokning när du bokar fler än 20 nätter
Från 11/04/2026 till 08/05/2026
|
15%
rabatt
|
|
10% rabatt på din bokning när du bokar fler än 13 nätter
Från 11/04/2026 till 08/05/2026
|
10%
rabatt
|
|
25% rabatt på din bokning när du bokar fler än 30 nätter
Från 16/05/2026 till 05/06/2026
|
25%
rabatt
|
Liknande boenden
-
Fantastiskt hus som erbjuder en perfekt kombination av komfort och modern stil belägen 300 meter från hamnen med sandstrand och trivsamma restauranger. Idealiskt för en avkopplande semester, med alla bekvämligheter du kan önska.
Mysigt vardagsrum där ni kan koppla av framför tv:n med intilliggande matsal. Härifrån kommer ni direkt ut på altanen, en idealisk plats för avkoppling och sociala stunder under bar himmel. Det moderna köket är fullt utrustat och redo för kulinariska äventyr. Med tre rymliga sovrum finns det gott om plats för alla. Ett med dubbelsäng, ett med våningssäng och ett med en bäddsoffa. Två fina helkaklade badrum finns , där ni har en tvättmaskin i det ena.
Att se och göra i Stora Rör och i närområdet
Stora Rör är en idyllisk och charmig liten hamnby på Ölands västra kust. Denna lilla pärla är en av öns mest älskade destinationer, känd för sin pittoreska hamn, där det finns en trevlig Restaurang, ett omskrivet sommarcafé och numera en liten Pub "Hökarboden" som även serverar pizza. Här kan ni avnjuta fina sommarkvällar med underbara solnedgångar över Kalmarsund.
För den motionssugna finns det tennisbanor och padelbanor, utanför huset. Vill man ta cykeln så finns det många fina cykelvägar att välja på både längs kusten och i Rällaskogen. Ekerum Golf ligger endast 5 min bilfärd norrut. Borgholms Slottsruin är ett intressant resmål, där finns också Solliden som är Kungens och Drottningens sommarresidens, som har en öppen trädgård där man kan avnjuta en fin sommardag, det ligger endast 15km norrut. Öland har massor av sevärdheter, fina sandstränder och gårdsbutiker att upptäcka.
Bra att veta om boendet
• Sängkläder och handdukar finns inte tillgängligt i huset – vänligen ta med egna.
• Slutstädning ingår inte i priset så huset skall städas innan avresa.
• El ingår i priset.
• Husdjur är inte tillåtet i huset.
• RÖKNING FÖRBJUDEN!!
• INGA UNGDOMSGRUPPER!!
Annan intressant information
Turistregistreringsnummer
SE04040