› Färjestaden › SE04040
SE04040
Färjestaden - Ferienhaus
Verfügbarkeit und Preise
Unterkunft
Beschreibung
Das Ferienhaus befindet sich in einer ruhigen Gegend und nur 10 Gehminuten vom Hafen in Färjestaden entfernt.
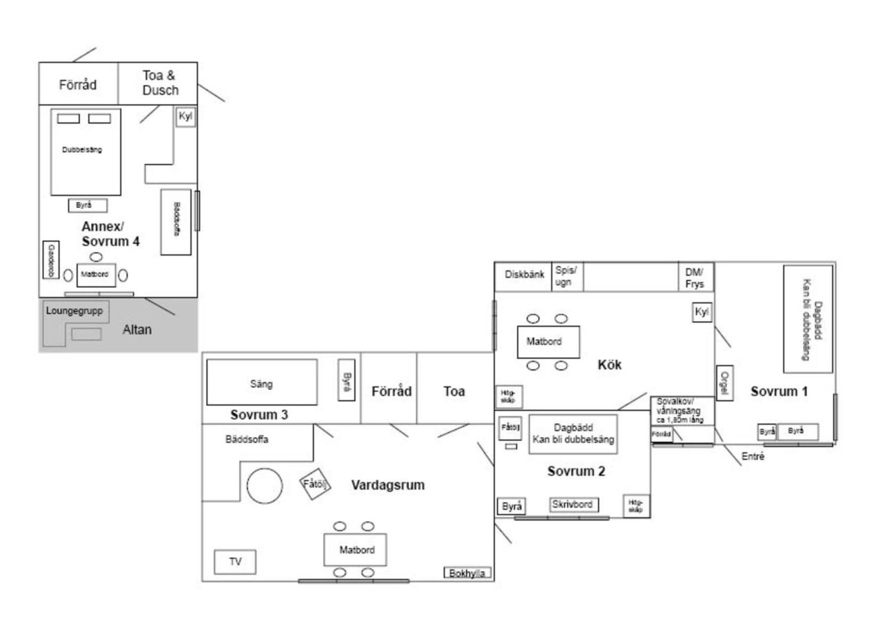
Das Haus besteht aus einem gemütlichen Wohnzimmer, das mit einem Esstisch und einer bequemen Sofagruppe sowie einem Fernseher ausgestattet ist. Daneben befindet sich ein Schlafzimmer mit einem Einzelbett und einer Toilette. Vom Wohnzimmer aus gelangt man dann über einen begehbaren Raum in die Küche, die mit einer Schlafcouch und einem Sessel ausgestattet ist. Die Küche ist praktisch und gut ausgestattet für Ihren Aufenthalt. Von hier aus gelangt man in das zweite Schlafzimmer, das mit einer Schlafcouch ausgestattet ist und Zugang zum Garten hat. Im schönen Anbau finden Sie ein Doppelbett, ein Schlafsofa sowie eine Dusche und ein WC. Die Dusche/WC ist auch von außen erreichbar. Am Eingang finden Sie eine möblierte überdachte Terrasse, auf der Sie tagsüber sitzen und entspannen können. Auch im kleinen Garten haben Sie Zugang zu einer Outdoor-Gruppe, in der Sie Ihr Frühstück oder Abendessen einnehmen können. Hier wohnen Sie gut in einer schönen Gegend und in der Nähe von Färjestaden
Zu sehen und zu unternehmen in Färjestaden und Umgebung
In wenigen Gehminuten erreichen Sie Färjestaden mit seiner großen Auswahl an Restaurants am Hafen und einem Einkaufszentrum mit Geschäften. Außerdem gibt es feine Sandstrände, ein Beachvolleyballplatz, padel-hallen und Minigolfplätze. Wenn Sie Golf spielen möchten, ist der feine Golfplatz von Saxnäs nur 15 Minuten entfernt. Für die Kinder gibt es einen Ausflug in den Zoo und Vergnügungspark von Öland, der für sie ein Erlebnis sein kann. Besuchen Sie auch das Königsschloss Solliden oder Borgholm mit all seinen Geschäften und Restaurants oder machen Sie einen Ausflug nach Kalmar mit seinem Schloss oder dem Bauernhof Skälby, der etwas außerhalb von Kalmar liegt, wo Sie engen Kontakt zu den Tieren des Bauernhofs haben, der bei Familien mit Kindern beliebt ist, sowie A world of dinosaurs – Europas größtes Dinosauriermuseum.
Gut zu wissen über die Unterkunft
Bettwäsche und Handtücher sind im Haus nicht vorhanden – bitte selbst mitbringen.
Die Endreinigung ist obligatorisch und kostet 1800 SEK/Aufenthalt.
Strom und WLAN ist im Preis inbegriffen.
Das Haus besteht aus einem gemütlichen Wohnzimmer, das mit einem Esstisch und einer bequemen Sofagruppe sowie einem Fernseher ausgestattet ist. Daneben befindet sich ein Schlafzimmer mit einem Einzelbett und einer Toilette. Vom Wohnzimmer aus gelangt man dann über einen begehbaren Raum in die Küche, die mit einer Schlafcouch und einem Sessel ausgestattet ist. Die Küche ist praktisch und gut ausgestattet für Ihren Aufenthalt. Von hier aus gelangt man in das zweite Schlafzimmer, das mit einer Schlafcouch ausgestattet ist und Zugang zum Garten hat. Im schönen Anbau finden Sie ein Doppelbett, ein Schlafsofa sowie eine Dusche und ein WC. Die Dusche/WC ist auch von außen erreichbar. Am Eingang finden Sie eine möblierte überdachte Terrasse, auf der Sie tagsüber sitzen und entspannen können. Auch im kleinen Garten haben Sie Zugang zu einer Outdoor-Gruppe, in der Sie Ihr Frühstück oder Abendessen einnehmen können. Hier wohnen Sie gut in einer schönen Gegend und in der Nähe von Färjestaden
Zu sehen und zu unternehmen in Färjestaden und Umgebung
In wenigen Gehminuten erreichen Sie Färjestaden mit seiner großen Auswahl an Restaurants am Hafen und einem Einkaufszentrum mit Geschäften. Außerdem gibt es feine Sandstrände, ein Beachvolleyballplatz, padel-hallen und Minigolfplätze. Wenn Sie Golf spielen möchten, ist der feine Golfplatz von Saxnäs nur 15 Minuten entfernt. Für die Kinder gibt es einen Ausflug in den Zoo und Vergnügungspark von Öland, der für sie ein Erlebnis sein kann. Besuchen Sie auch das Königsschloss Solliden oder Borgholm mit all seinen Geschäften und Restaurants oder machen Sie einen Ausflug nach Kalmar mit seinem Schloss oder dem Bauernhof Skälby, der etwas außerhalb von Kalmar liegt, wo Sie engen Kontakt zu den Tieren des Bauernhofs haben, der bei Familien mit Kindern beliebt ist, sowie A world of dinosaurs – Europas größtes Dinosauriermuseum.
Gut zu wissen über die Unterkunft
Bettwäsche und Handtücher sind im Haus nicht vorhanden – bitte selbst mitbringen.
Die Endreinigung ist obligatorisch und kostet 1800 SEK/Aufenthalt.
Strom und WLAN ist im Preis inbegriffen.
Verteilung der Schlafzimmer
1 Einzelbett
1 Doppelsofabett
1 Doppelbett
1 Doppelsofabett
Eigenschaften
500 m zum Sandstrand
500 m der Stadt
Internet
Garten
Küche (elektrisches Kochfeld)
Kühlschrank
Mikrowelle
Backofen
Gefrierschrank
Spülmaschine
Geschirr/Besteck
Kochutensilien
Kaffeemaschine
Toaster
Wasserkocher
Herdplatte
Badezimmer
1 Bad mit Dusche
1 WC
Aussicht
Garten
Allgemeine Daten
1 Fernseher
Garten
Gartenmöbel
10 m² Terrasse
Grill
Internet
Internet
WLAN
88 m² Wohnfläche
1.356 m² Grundstücksfläche
Elektroheizung
Parkplatz im Freien auf dem Grundstück
Parkplatz im Freien auf dem Grundstück
2 Stellplätze
Privater Eingang
Partys/Veranstaltungen nicht erlaubt
Rauchmelder
exklusive
Bettwäsche
Handtücher
Verbindliche oder inbegriffene Leistungen
Electricity: inklusive
Endreinigung: 166,25 € /Buchung
Endreinigung
Die Reinigungsgebühr ist obligatorisch und muss mit der letzten Zahlung vor der Ankunft bezahlt warden.
Heizung: inklusive
Heizung
Heizung kann bestellt oder inkludiert werden, siehe Unterkunftsbeschreibung.
Internetzugang: inklusive
Internetzugang
Sie haben kostenlosen Internetzugang entweder über WLAN oder Kabel. Weitere Informationen entnehmen Sie bitte der Hausbeschreibung.
Sonstige Leistungen
Parkplatz im Freien: inklusive
Parkplatz im Freien
Parkplätze sind vorhanden.
Organisieren Sie Ihren Zeitplan
Check-in-Zeiten Samstag von 16:00 bis 20:00 Uhr
Check-out-ZeitenVor 10:00 Uhr
Anmerkungen
- Jugendgruppen werden in diesem Objekt leider nicht akzeptiert (bis zu einem Alter von 21 Jahren)
- Rauchen ist nicht gestattet
- Haustiere sind nicht gestattet
- Rauchen ist nicht gestattet
- Haustiere sind nicht gestattet
Reservierungsbedingungen
Vom Buchungsdatum an bis 43 Tage vor der Anreise wird die Stornierung 40% des Mietbetrages kosten.
Stornierungsbedingungen
Bei der Stornierung oder beim Nichterscheinen gelten folgende Bedingungen
Vom Buchungsdatum an bis 43 Tage vor der Anreise
40% des Mietpreises
Von 42 Tage vorher bis zur Anreise
100% des Mietpreises
Nicht antreten
100% des Mietpreises
Karte und Entfernungen
-
Entfernung
Nächster Sandstrand
500 m
Nächste Stadt - Färjestaden
500 m
Nächste Einkaufsmöglichkeit
500 m
Nächstes Restaurant
500 m
Nächster Flughafen - Kalmar Öland Airport
18,01 km
Nächster Flughafen - Kalmar Öland Airport
18,01 km
Verfügbarkeitskalender
| April - 2026 | ||||||
| Mo | Di | Mi | Do | Fr | Sa | So |
| 1 | 2 | 3 | 4 | 5 | ||
| 6 | 7 | 8 | 9 | 10 | 11 | 12 |
| 13 | 14 | 15 | 16 | 17 | 18 | 19 |
| 20 | 21 | 22 | 23 | 24 | 25 | 26 |
| 27 | 28 | 29 | 30 | |||
| Mai - 2026 | ||||||
| Mo | Di | Mi | Do | Fr | Sa | So |
| 1 | 2 | 3 | ||||
| 4 | 5 | 6 | 7 | 8 | 9 | 10 |
| 11 | 12 | 13 | 14 | 15 | 16 | 17 |
| 18 | 19 | 20 | 21 | 22 | 23 | 24 |
| 25 | 26 | 27 | 28 | 29 | 30 | 31 |
| Juni - 2026 | ||||||
| Mo | Di | Mi | Do | Fr | Sa | So |
| 1 | 2 | 3 | 4 | 5 | 6 | 7 |
| 8 | 9 | 10 | 11 | 12 | 13 | 14 |
| 15 | 16 | 17 | 18 | 19 | 20 | 21 |
| 22 | 23 | 24 | 25 | 26 | 27 | 28 |
| 29 | 30 | |||||
| Juli - 2026 | ||||||
| Mo | Di | Mi | Do | Fr | Sa | So |
| 1 | 2 | 3 | 4 | 5 | ||
| 6 | 7 | 8 | 9 | 10 | 11 | 12 |
| 13 | 14 | 15 | 16 | 17 | 18 | 19 |
| 20 | 21 | 22 | 23 | 24 | 25 | 26 |
| 27 | 28 | 29 | 30 | 31 | ||
| August - 2026 | ||||||
| Mo | Di | Mi | Do | Fr | Sa | So |
| 1 | 2 | |||||
| 3 | 4 | 5 | 6 | 7 | 8 | 9 |
| 10 | 11 | 12 | 13 | 14 | 15 | 16 |
| 17 | 18 | 19 | 20 | 21 | 22 | 23 |
| 24 | 25 | 26 | 27 | 28 | 29 | 30 |
| 31 | ||||||
| September - 2026 | ||||||
| Mo | Di | Mi | Do | Fr | Sa | So |
| 1 | 2 | 3 | 4 | 5 | 6 | |
| 7 | 8 | 9 | 10 | 11 | 12 | 13 |
| 14 | 15 | 16 | 17 | 18 | 19 | 20 |
| 21 | 22 | 23 | 24 | 25 | 26 | 27 |
| 28 | 29 | 30 | ||||
Preisliste
|
Saison
Preis für Woche (inklusive MwSt.)
*
|
|
|---|---|
| 11.04.2026 · 08.05.2026 |
750 € |
| 09.05.2026 · 15.05.2026 |
1.000 € |
| 16.05.2026 · 05.06.2026 |
750 € |
| 06.06.2026 · 19.06.2026 |
1.000 € |
| 20.06.2026 · 14.08.2026 |
1.250 € |
| 15.08.2026 · 21.08.2026 |
1.000 € |
Sonderangebote
*|
25% Rabatt auf alle Buchungen für länger als 30 Nächte
Vom 11.04.2026 bis zum 08.05.2026
|
25%
Rabatt
|
|
15% Rabatt auf alle Buchungen für länger als 20 Nächte
Vom 11.04.2026 bis zum 08.05.2026
|
15%
Rabatt
|
|
10% Rabatt auf alle Buchungen für länger als 13 Nächte
Vom 11.04.2026 bis zum 08.05.2026
|
10%
Rabatt
|
|
25% Rabatt auf alle Buchungen für länger als 30 Nächte
Vom 16.05.2026 bis zum 05.06.2026
|
25%
Rabatt
|
Ähnliche Unterkünfte
-
Fantastisches Haus, das eine perfekte Kombination aus Komfort und modernem Stil bietet und 300 Meter vom Hafen mit Sandstrand und angenehmen Restaurants entfernt liegt. Ideal für einen erholsamen Urlaub, mit allen Annehmlichkeiten, die Sie sich wünschen.
Gemütliches Wohnzimmer, in dem Sie sich vor dem Fernseher mit angrenzendem Esszimmer entspannen können. Von hier aus gelangen Sie direkt auf den Balkon, ein idealer Ort für Entspannung und gesellige Momente unter freiem Himmel. Die moderne Küche ist komplett ausgestattet und bereit für kulinarische Abenteuer. Mit drei geräumigen Schlafzimmern gibt es viel Platz für alle. Eines mit Doppelbett, eines mit Etagenbett und eines mit Schlafsofa. Zwei schöne, komplett geflieste Badezimmer, in einem davon befindet sich eine Waschmaschine.
Zu sehen und zu unternehmen in Stora Rör und Umgebung
Stora Rör ist ein idyllisches und charmantes kleines Hafendorf an der Westküste Ölands. Dieses kleine Juwel ist eines der beliebtesten Reiseziele der Insel und bekannt für seinen malerischen Hafen, in dem es ein schönes Restaurant, ein neu gestaltetes Sommercafé und heutzutage einen kleinen Pub „Hökarboden“ gibt, der auch Pizza serviert. Hier können Sie schöne Sommerabende mit wunderschönen Sonnenuntergängen über Kalmarsund genießen.
Für diejenigen, die gerne Sport treiben, gibt es Tennisplätze und Padelplätze außerhalb des Hauses. Wenn Sie mit dem Fahrrad unterwegs sein möchten, stehen Ihnen sowohl entlang der Küste als auch im Rällaskogen viele schöne Radwege zur Auswahl. Ekerum Golf liegt nur 5 Autominuten nördlich. Die Burgruine Borgholm ist ein interessantes Ausflugsziel. Außerdem gibt es Solliden, die Sommerresidenz des Königs und der Königin, die über einen offenen Garten verfügt, in dem Sie einen schönen Sommertag genießen können. Sie liegt nur 15 km nördlich. Auf Öland gibt es jede Menge Attraktionen, feine Sandstrände und Hofläden zu entdecken.
Gut zu wissen über die Unterkunft
• Bettwäsche und Handtücher sind im Haus nicht vorhanden – bitte selbst mitbringen.
• Die Endreinigung ist nicht im Preis inbegriffen, daher muss das Haus vor der Abreise gereinigt werden.
• Strom ist im Preis inbegriffen.
• Haustiere sind im Haus nicht gestattet.
• RAUCHEN VERBOTEN!!
• KEINE JUGENDGRUPPEN!!
Weitere interessante Daten
touristische Registriernummer
SE04040